1952 W 5450 S Roy, UT 84067
1952 W 5450 S Roy, UT 84067
1952 W 5450 S Roy, UT 84067
1952 W 5450 S Roy, UT 84067
1952 W 5450 S Roy, UT 84067

1952 W 5450 S Roy, UT 84067

For Sale$949,999
26,572 sqft
0.61 acres

PROPERTY DETAILS

About This Property

This land / lot for sale at 1952 W 5450 S Roy, UT 84067 has been listed at $949,999 and has been on the market for 43 days.

Full Description

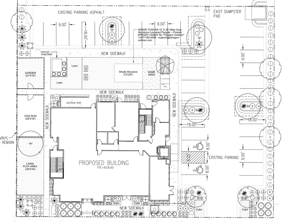
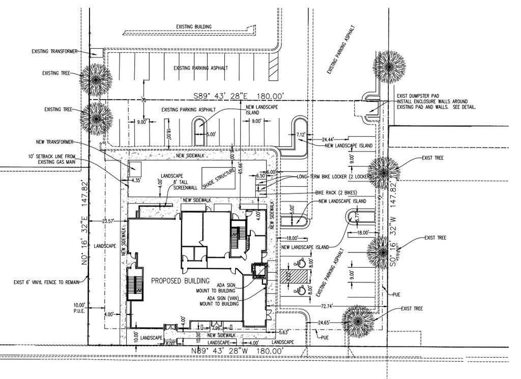
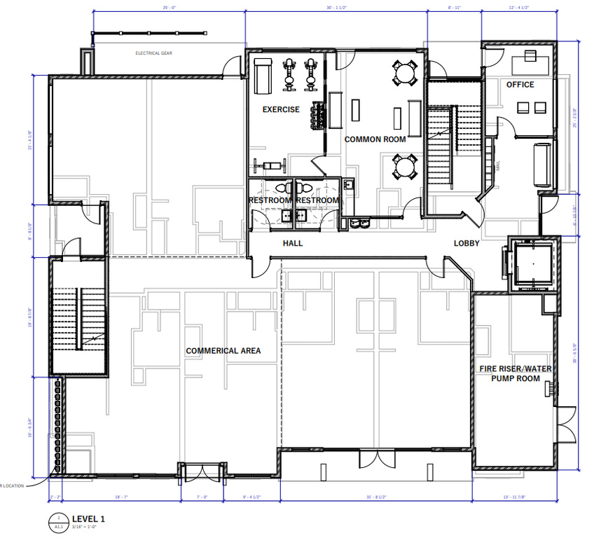
Opportunity to acquire a fully entitled 40-unit mixed-use development located just off 1900 West and 5600 South, only a few hundred yards from I-15 in Roy City, Utah. The project features 40 residential studio units and approximately 3,000 square feet of ground-floor commercial space, positioned near two of the City's primary thoroughfares with excellent visibility and access. The sale includes all approved plans, third-party reports, exterior renderings, floor plans, and full City entitlements (final approvals expected within the next month). Seller is currently fielding offers and open to negotiated terms or potential partnership opportunities.

Property Highlights

  • The project features 40 residential studio units and approximately 3,000 square feet of ground-floor commercial space, positioned near two of the City's primary thoroughfares with excellent visibility and access. .
  • Opportunity to acquire a fully entitled 40-unit mixed-use development located just off 1900 West and 5600 South, only a few hundred yards from I-15 in Roy City, Utah. .
  • The sale includes all approved plans, third-party reports, exterior renderings, floor plans, and full City entitlements (final approvals expected within the next month). .
  • 3,000 square feet of well-designed living space

The land / lot for sale at 1952 W 5450 S Roy, UT 84067 has been listed at $949,999 and has been on the market for 43 days.

Opportunity to acquire a fully entitled 40-unit mixed-use development located just off 1900 West and 5600 South, only a few hundred yards from I-15 in Roy City, Utah. The project features 40 residential studio units and approximately 3,000 square feet of ground-floor commercial space, positioned near two of the City's primary thoroughfares with excellent visibility and access. The sale includes all approved plans, third-party reports, exterior renderings, floor plans, and full City entitlements (final approvals expected within the next month). Seller is currently fielding offers and open to negotiated terms or potential partnership opportunities.


Let me assist you on purchasing a house and get a FREE home Inspection!

General Information

  • Price

    $949,999   

  • Days on Market

    43

  • Area

  • House Size

    26572 Sq Ft

  • Address       

    1952 W 5450 S Roy, UT 84067

  • Listed By   

    Equity Real Estate (Results)

  • HOA

    NO

  • Lot Size

    0.61

  • MLS

    2121254

  • Status

    Active

  • City

    Roy

Inclusions

  • Natural Gas Available
  • Electricity Available
  • Sewer Available

Garage and Parking

  • Garage Type: No
  • Garage Spaces:
  • Carport: No

Price History

Nov 04, 2025

$949,999

Just Listed





Other Property Info

  • Area:
  • Zoning: Multi-Family, Commercial
  • State: UT
  • County: Weber
  • This listing is courtesy of:: Porter Christensen Equity Real Estate (Results).

Utilities

  • Natural Gas Available

  • Electricity Available

  • Sewer Available


Based on information from UtahRealEstate.com as of 2025-11-04 17:32:27. All data, including all measurements and calculations of area, is obtained from various sources and has not been, and will not be, verified by broker or the MLS. All information should be independently reviewed and verified for accuracy. Properties may or may not be listed by the office/agent presenting the information. IDX information is provided exclusively for consumers’ personal, non-commercial use, and may not be used for any purpose other than to identify prospective properties consumers may be interested in purchasing.

Housing Act and Utah Fair Housing Act, which Acts make it illegal to make or publish any advertisement that indicates any preference, limitation, or discrimination based on race, color, religion, sex, handicap, family status, or national origin.

Best Utah Real Estate Mobile App
MLS at your fingertips
Real-time updates
Listing Alerts
Interactive Map
Save your searches

Best Utah Real Estate

Your trusted MLS search companion

Accurate Data - Direct MLS feed for real-time listings
Privacy First - We never sell your personal data
Personalized - Custom alerts for your dream home
Easy to Use - Intuitive design for all users