32 E 100 N Smithfield, UT 84335
32 E 100 N Smithfield, UT 84335
32 E 100 N Smithfield, UT 84335
32 E 100 N Smithfield, UT 84335
32 E 100 N Smithfield, UT 84335
32 E 100 N Smithfield, UT 84335
32 E 100 N Smithfield, UT 84335

32 E 100 N Smithfield, UT 84335

For Sale$249,900
7,841 sqft
0.18 acres

PROPERTY DETAILS

About This Property

This land / lot for sale at 32 E 100 N Smithfield, UT 84335 has been listed at $249,900 and has been on the market for 150 days.

Full Description

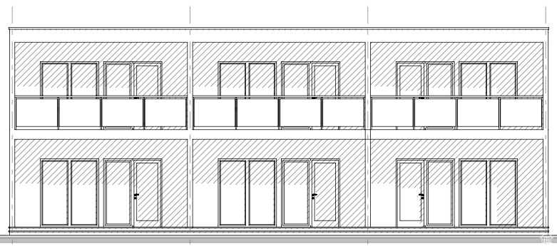
Seller is willing to subordinate; bring your own builder. This lot has been approved for the building of a live/work Triplex!! 30% of the total square footage can be commercial. Approved Plans have 2 beds 2 bathrooms upstairs, kitchen, living space, and Commercial Space with 1/2 bath downstairs per unit. Includes structural engineering and one-time use of plans. Ready to pull permits! Once built, each unit can be sold separately. Buyer to verify all info with City.

Property Highlights

  • Approved Plans have 2 beds 2 bathrooms upstairs, kitchen, living space, and Commercial Space with 1/2 bath downstairs per unit. .
  • 30% of the total square footage can be commercial. .
  • Seller is willing to subordinate; bring your own builder. .

The land / lot for sale at 32 E 100 N Smithfield, UT 84335 has been listed at $249,900 and has been on the market for 150 days.

Seller is willing to subordinate; bring your own builder. This lot has been approved for the building of a live/work Triplex!! 30% of the total square footage can be commercial. Approved Plans have 2 beds 2 bathrooms upstairs, kitchen, living space, and Commercial Space with 1/2 bath downstairs per unit. Includes structural engineering and one-time use of plans. Ready to pull permits! Once built, each unit can be sold separately. Buyer to verify all info with City.


Let me assist you on purchasing a house and get a FREE home Inspection!

General Information

  • Price

    $249,900   

  • Days on Market

    150

  • Area

  • House Size

    7841 Sq Ft

  • Address       

    32 E 100 N Smithfield, UT 84335

  • Listed By   

    Cornerstone Real Estate Professionals, LLC

  • HOA

    NO

  • Lot Size

    0.18

  • MLS

    2118741

  • Status

    Active

  • City

    Smithfield

  • Term Of Sale

    Cash,Conventional,Seller Will Subordinate

Inclusions

  • Curb & Gutter
  • Sidewalks
  • Natural Gas Available
  • Electricity Available

Garage and Parking

  • Garage Type: No
  • Garage Spaces:
  • Carport: No

Price History

Oct 21, 2025

$249,900

Just Listed





Other Property Info

  • Area:
  • Zoning: Multi-Family
  • State: UT
  • County: Cache
  • This listing is courtesy of:: Robert Brown Cornerstone Real Estate Professionals, LLC.

Utilities

  • Natural Gas Available

  • Electricity Available


Based on information from UtahRealEstate.com as of 2025-10-21 16:14:14. All data, including all measurements and calculations of area, is obtained from various sources and has not been, and will not be, verified by broker or the MLS. All information should be independently reviewed and verified for accuracy. Properties may or may not be listed by the office/agent presenting the information. IDX information is provided exclusively for consumers’ personal, non-commercial use, and may not be used for any purpose other than to identify prospective properties consumers may be interested in purchasing.

Housing Act and Utah Fair Housing Act, which Acts make it illegal to make or publish any advertisement that indicates any preference, limitation, or discrimination based on race, color, religion, sex, handicap, family status, or national origin.

SIMILAR HOMES

, Smithfield UT 84335


Smithfield UT 84335





  • 0.73 Acres

$199,000

NEW - 31 HOUR AGO
78 S 1000 E, Hyde Park UT 84318

78 S 1000 E
Hyde Park UT 84318

What a view! You will love this convenient location close to trails that connect you to the Bonneville Shoreline to Green Canyon and Logan Canyon. This is a pre...

  • 0.54 Acres

$219,750

1600 W 4600 N, Benson UT 84335

1600 W 4600 N
Benson UT 84335

Discover serenity on this beautiful 6-acre property-perfect for all your animals. Enjoy expansive mountain views, a natural spring on the land, and it's peacefu...

  • 6.00 Acres

$200,000

Best Utah Real Estate Mobile App
MLS at your fingertips
Real-time updates
Listing Alerts
Interactive Map
Save your searches

Best Utah Real Estate

Your trusted MLS search companion

Accurate Data - Direct MLS feed for real-time listings
Privacy First - We never sell your personal data
Personalized - Custom alerts for your dream home
Easy to Use - Intuitive design for all users