2409 E 22130 N #17 Fountain Green, UT 84632
2409 E 22130 N #17 Fountain Green, UT 84632
2409 E 22130 N #17 Fountain Green, UT 84632
2409 E 22130 N #17 Fountain Green, UT 84632

2409 E 22130 N #17 Fountain Green, UT 84632

For Sale$799,000
4 beds
3 baths
3,400 sqft
5.00 acres
2026 year

PROPERTY DETAILS

About This Property

This home for sale at 2409 E 22130 N #17 Fountain Green, UT 84632 has been listed at $799,000 and has been on the market for 1 day.

Full Description

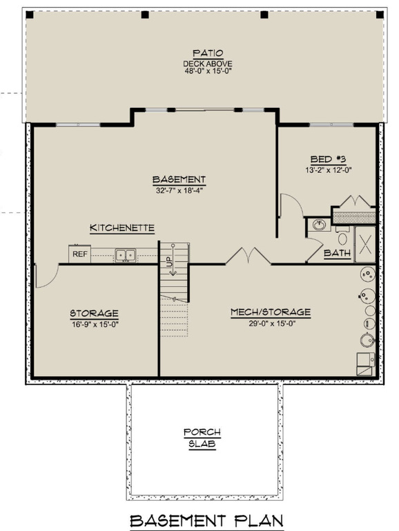
Set on 5 pristine acres Grandview Mountain Estates, and exclusvie development south of Fountain Green, this to be buiilt home offers the perfect blend of luxur, and breathtaking natural surroundings. Designed with both comfort and versatility in mind, the home features high-end finishes and thoughtful upgrades throughout, creating a refined yet inviting living space. Buyers have the option for additional upgrades, including a 3-car garage and a fully equipped basement apartment complete with a kitchen (a kitchenette is currently planned but a full kitchen can be added as an upgrade) and laundry-perfect for multi-generational living or generating rental income; a 4th bedroom will be included in basement. Enjoy the peace and quiet of country living while still being conveniently located just 45 minutes from Spanish Fork. Outdoor enthusiasts will appreciate the close proximity to a wide range of recreational activities, including hiking, fishing, ATV trails, and more. Check out this property now and you will have the opportunity to customize the home. Buyer and buyers agent to verify all information. Owner of property is a licensed real estate agent. Taxes are based on land only and taxes for home have not been assessed.

Property Highlights

  • Enjoy the peace and quiet of country living while still being conveniently located just 45 minutes from Spanish Fork. .
  • Designed with both comfort and versatility in mind, the home features high-end finishes and thoughtful upgrades throughout, creating a refined yet inviting living space. .
  • Check out this property now and you will have the opportunity to customize the home. .
  • Brand new construction with builder warranty and modern efficiency standards
  • Expansive 5.00 acre estate lot offers endless possibilities

The home for sale at 2409 E 22130 N #17 Fountain Green, UT 84632 has been listed at $799,000 and has been on the market for 1 day.

Set on 5 pristine acres Grandview Mountain Estates, and exclusvie development south of Fountain Green, this to be buiilt home offers the perfect blend of luxur, and breathtaking natural surroundings. Designed with both comfort and versatility in mind, the home features high-end finishes and thoughtful upgrades throughout, creating a refined yet inviting living space. Buyers have the option for additional upgrades, including a 3-car garage and a fully equipped basement apartment complete with a kitchen (a kitchenette is currently planned but a full kitchen can be added as an upgrade) and laundry-perfect for multi-generational living or generating rental income; a 4th bedroom will be included in basement. Enjoy the peace and quiet of country living while still being conveniently located just 45 minutes from Spanish Fork. Outdoor enthusiasts will appreciate the close proximity to a wide range of recreational activities, including hiking, fishing, ATV trails, and more. Check out this property now and you will have the opportunity to customize the home. Buyer and buyers agent to verify all information. Owner of property is a licensed real estate agent. Taxes are based on land only and taxes for home have not been assessed.


Let me assist you on purchasing a house and get a FREE home Inspection!

General Information

  • Price

    $799,000   

  • Days on Market

    1

  • Area

    Fairview; Thistle; Mt Pleasant

  • Total Bedrooms

    4

  • Total Bathrooms

    3

  • House Size

    3400 Sq Ft

  • Neighborhood

    GRANDVIEW MOUNTAIN ESTATES

  • Address       

    2409 E 22130 N #17 Fountain Green, UT 84632

  • Listed By   

    Morley Premier Realty

  • HOA

    YES

  • Lot Size

    5.00

  • Price/sqft

    235.00

  • Year Built

    2026

  • MLS

    2152056

  • Status

    Active

  • City

    Fountain Green

  • Term Of Sale

    Cash,Conventional,FHA,VA Loan

Interior Features

  • Closet: Walk-In
  • Disposal

Exterior Features

  • Basement Entrance
  • Deck; Covered
  • Patio: Covered

Building and Construction

  • Roof: Asphalt
  • Exterior: Basement Entrance,Deck; Covered,Patio: Covered
  • Construction: Asphalt
  • Foundation Basement:

Garage and Parking

  • Garage Type: Attached
  • Garage Spaces: 0

Heating and Cooling

  • Air Condition: Central Air
  • Heating: Forced Air,>= 95% efficiency

HOA Dues Include

  • Snow Removal

Land Description

  • Road: Paved
  • View: Mountain
  • View: Valley

Price History

Apr 20, 2026

$799,000

Just Listed

$235.00/sqft


Mortgage Calculator

$
$
%
0% 10% 20% 30% 40% 50%
%
Rates updated: Apr 21, 6:00 AM

Estimated Monthly Payment

$0
Principal & Interest $0
Property Tax (est) $0
Home Insurance $0
Loan Amount: $0
Total Interest Paid: $0
Total Amount Paid: $0

Neighborhood Information

GRANDVIEW MOUNTAIN ESTATES

Fountain Green, UT

Located in the GRANDVIEW MOUNTAIN ESTATES neighborhood of Fountain Green

Nearby Schools
  • Elementary: Fountain Green
  • High School: North Sanpete
  • Jr High: North Sanpete
  • High School: North Sanpete

Car-Dependent

person walking

Transit Score

0

Minimal Transit

Somewhat Bikeable

This area is Car-Dependent - very few (if any) errands can be accomplished on foot. Minimal public transit is available in the area. This area is Somewhat Bikeable - it's convenient to use a bike for a few trips.



Other Property Info

  • Area: Fairview; Thistle; Mt Pleasant
  • Zoning: Single-Family
  • State: UT
  • County: Sanpete
  • This listing is courtesy of:: Shalmarie Morley Morley Premier Realty.
    435-851-4902.

Utilities

  • Sewer: Septic Tank


Based on information from UtahRealEstate.com as of 2026-04-20 20:32:03. All data, including all measurements and calculations of area, is obtained from various sources and has not been, and will not be, verified by broker or the MLS. All information should be independently reviewed and verified for accuracy. Properties may or may not be listed by the office/agent presenting the information. IDX information is provided exclusively for consumers’ personal, non-commercial use, and may not be used for any purpose other than to identify prospective properties consumers may be interested in purchasing.

Housing Act and Utah Fair Housing Act, which Acts make it illegal to make or publish any advertisement that indicates any preference, limitation, or discrimination based on race, color, religion, sex, handicap, family status, or national origin.

SIMILAR HOMES

488 S 250 W, Fountain Green UT 84632

488 S 250 W
Fountain Green UT 84632

Welcome to this beautifully built 2019 ranch-style rambler, offering the perfect blend of cozy charm and modern open-concept living. Situated on a spacious lot ...

  • 4822 Sq Ft

  • 6

  • 4

  • 2

$735,000

710 W 300 N, Fountain Green UT 84632

710 W 300 N
Fountain Green UT 84632

ENJOY the PEACEFUL COUNTRY LIVING! SO CLEAN!! BEAUTIFUL RAMBLER Style HOME w/HUGE, HEATED-DETACHED SHOP & RV PARKING too!! SPACIOUS 1/2 ACRE Horse Property i...

  • 3492 Sq Ft

  • 6

  • 3

  • 4

$650,000

Best Utah Real Estate Mobile App
MLS at your fingertips
Real-time updates
Listing Alerts
Interactive Map
Save your searches

Best Utah Real Estate

Your trusted MLS search companion

Accurate Data - Direct MLS feed for real-time listings
Privacy First - We never sell your personal data
Personalized - Custom alerts for your dream home
Easy to Use - Intuitive design for all users